0
Zum Inhalt springen
dorn architekten köln
dorn architekten köln
bauten + projekte
dorn architekten köln
dorn architekten köln
bauten + projekte
bauten + projekte
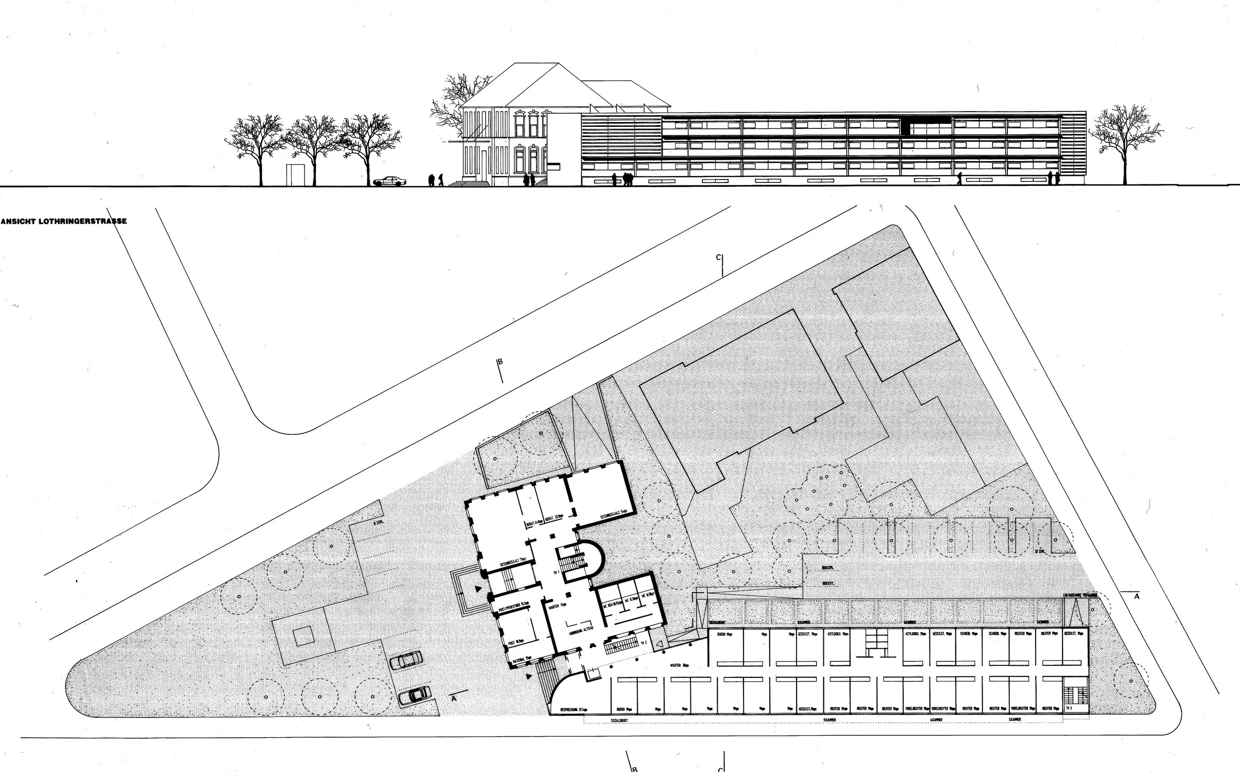
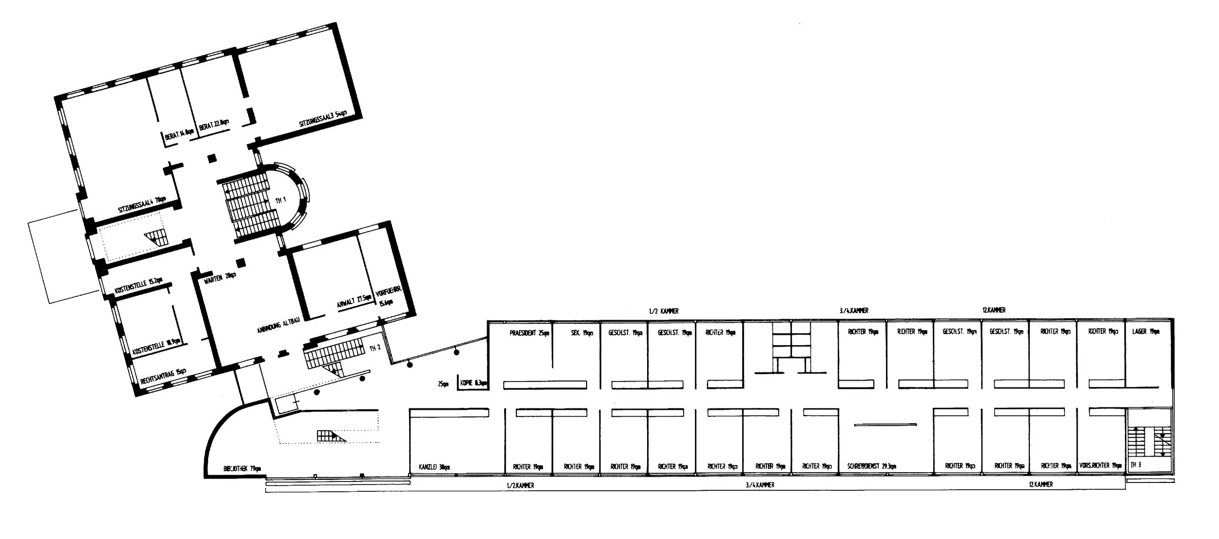
Zeichnung 3.jpeg
Zeichnung 4.jpeg
Zeichnung 2.jpeg

©2026 dorn architekten köln | Kontakt | Datenschutz | Impressum